
Luna
HOUSE SPECS
Square Footage:
4282 • Main 2076 • Upper 2206
Bedrooms:
3
Bathrooms:
3 Full 2 Half
Car Garage:
3
PREPLANNED OPTIONS
Ask us about the options.
Upper Floor

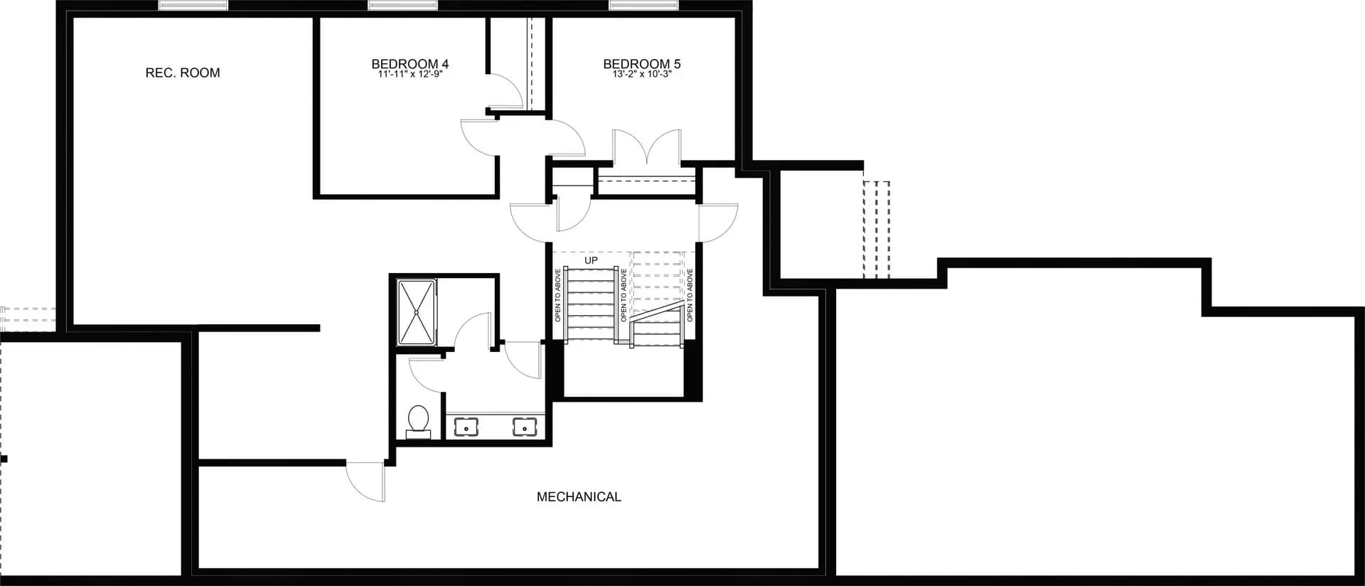
Basement

More available models
Let's build your story
For more information contact our Area Manager Carmen Jacober
at sales@fiftysix.ca or 403-371-2160

